|
パレス・ド・レオナール
森と光に抱かれて・・・ 小さいけれど、森に抱かれた暮らし。 小鳥たちのさえずりで目覚める爽快感を感じて下さい。 |
外観図丘の上に佇むパレス・ド・レオナールは
あなたが求めている、丘の上のオアシスです。 |
|
♦︎室内イメージ
|
|
玄関
|
リビング
|
キッチン
|
バスルーム
|
|
♦︎ロビー&空中庭園
|
|
エントランスロビー
|
空中庭園
|
|
♦平面図&概要
|
|
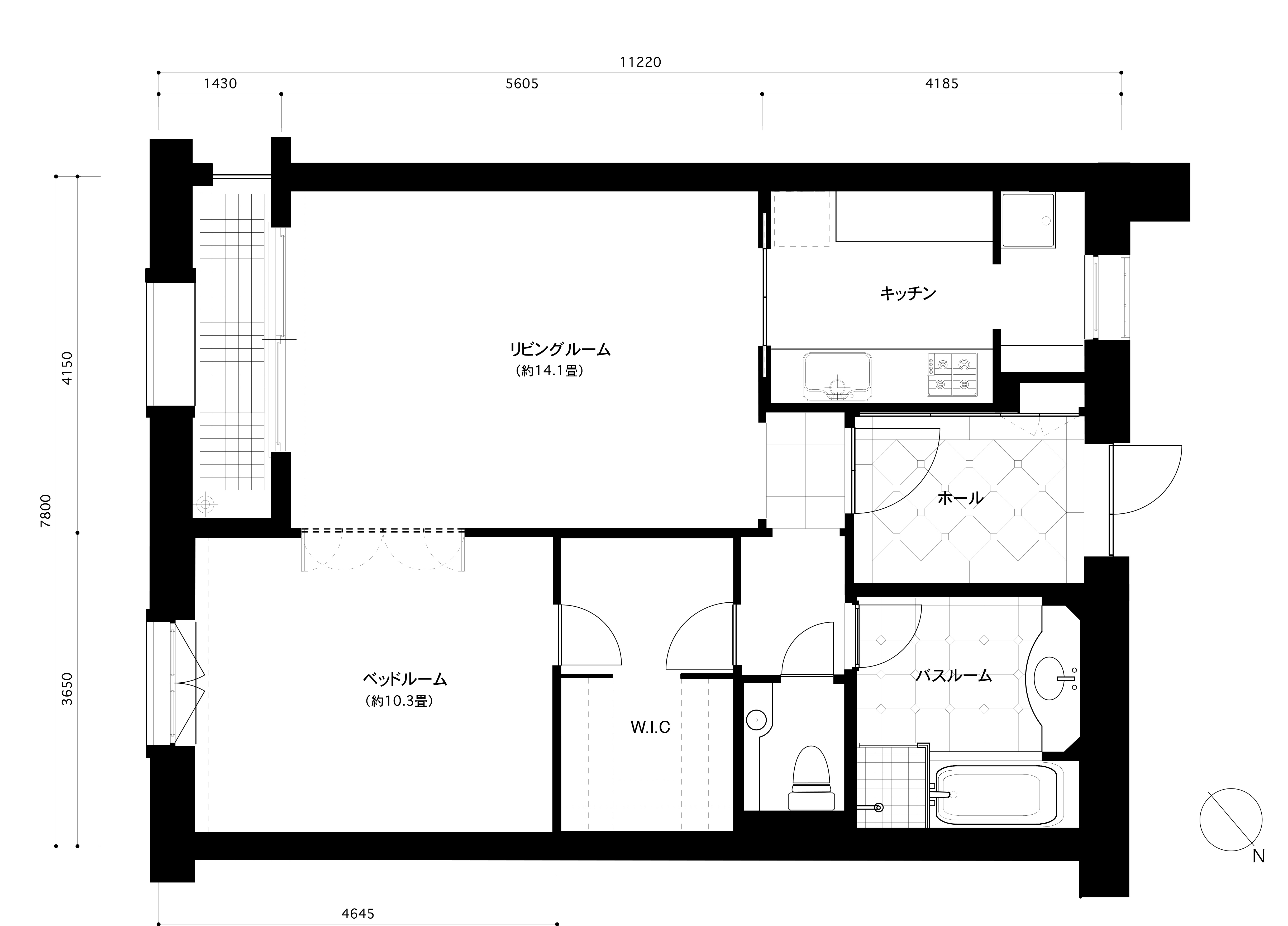
平面図
|
パレス・ド・レオナール304号室
専有面積:81.78㎡/24.73坪 天井高 :2650mm 附属施設:空調 賃 料 :月額 310,000円 管理費 :月額 30,000円 敷 金 :賃料1ヶ月分 主要用途:第1種中高層住宅地域 構 造 :鉄筋コンクリート造/地下1階・地上4階立て 総戸数 :18戸 |
|
*現在内覧可能でございます。
お問い合わせはフィオーレの森事務局までお願いいたします。 フィオーレの森事務局 044−866−3418 info@bosco-del-fiore.net 火曜日はお休みです。 |
